Alfred Andersson, Skillnadsgatan (Linjegatan) 20a

Titel gett av upphovsman
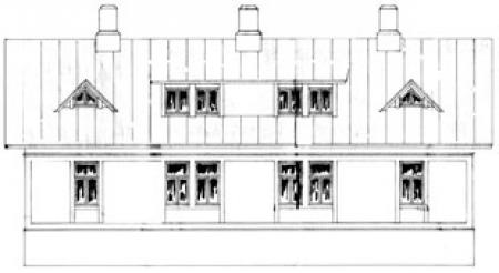
Stadsdel D • Kvarter V • Tomt nr 4b • Skillnadsgatan (Linjegatan) 20a • Bostadshus och uthus av Anders Öström 1919 • Huset k-märktes år 1989
Stadsarkitektkontorets utlåtande: Byggnaden är relativt väl bevarad. Taket mot gatan har dock en annan och mindre lyckad utformning än på ursprungsritningen. Fasadernas strukturerande listverk är ett helt annat än på ritningen. Det är osäkert om avvikelserna gjorts redan när byggnaden uppfördes eller i något senare skede. Den ursprungliga tomten är uppdelad på fyra delar av vilka tre är bebyggda. Grannhuset västerut är icke helt anpassat till k-huset. En missprydande garagenedfart mot gatan stör helhetsintrycket där.

Affärsmannen Ernst Eriksson (1869-1927, bror till Mathias Eriksson) köpte den obebyggda tomten på auktion i januari 1918. I september samma år var Anders Öströms ritningar till ett bostadshus och uthus klara och bygget påbörjades genast. Huset var stort och hade på nedre våningen åtta rum med kakelugnar medan övre våningen bestod av fyra rum och en stor öppen vind. Däremot finns inget kök utritat på grundplanen, vilket tyder på att alla rum var ämnade för uthyrning. År 1920 köptes gården av Alfred och Agda Andersson.

Grunduppgifter
Typ: Fysiskt objekt
Samling: Vitrin 8
Signum: v8DV-4b
Beskrivning
Språk: Svenska
Aktörer